Back

Longfield Industrial Estate ( East)

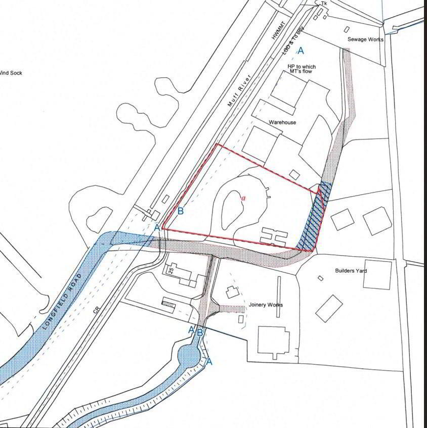
Longfield Road, Eglinton, Derry / Londonderry BT47 3PY £200,000
Free Market Appraisal Request your free no-obligation valuation today… Free Valuations

Share with a friend

Please check you have entered all details correctly:

Options

Key Information

Address Longfield Industrial Estate ( East), Longfield Road, Eglinton, Derry / Londonderry, BT47 3PY
Price Last listed at Offers over £200,000
Style Commercial Property
Status Sale Agreed
Book a Viewing
Call us now on: 028 7134 7539
Free Valuations Enquire

Make an enquiry

Please check you have entered all details correctly:

Summary

  • VACANT SITE
  • PRIME LOCATION
  • MAINS ELECTRICITY & WATER CLOSE BY
  • CONVENIENT TO THE VILLAGE OF EGLINTON & CITY OF DERRY AIRPORT
  • APPROX 2.4 ACRES

Misrepresentation clause : Daniel Henry, give notice to anyone who may read these particulars as follows:

  1. The particulars are prepared for the guidance only for prospective purchasers. They are intended to give a fair overall description of the property but are not intended to constitute part of an offer or contract.
  2. Any information contained herein (whether in text, plans or photographs) is given in good faith but should not be relied upon as being a statement of representation or fact.
  3. Nothing in these particulars shall be deemed to be a statement that the property is in good condition otherwise nor that any services or facilities are in good working order.
  4. The photographs appearing in these particulars show only certain parts of the property at the time when the photographs were taken. Certain aspects may be changed since the photographs were taken and it should not be assumed that the property remains precisely as displayed in the photographs. Furthermore, no assumptions should be made in respect of parts of the property which are not shown in the photographs.
  5. Any areas, measurements or distances referred to herein are approximate only.
  6. Where there is reference to the fact that alterations have been carried out or that a particular use is made of any part of the property this is not intended to be a statement that any necessary planning, building regulations or other consents have been obtained and these matters must be verified by an intending purchaser.
  7. Descriptions of the property are inevitably subjective and the descriptions contained herein are given in good faith as an opinion and not by way of statement or fact.
  8. None of the systems or equipment in the property has been tested by Daniel Henry for Year 2000 Compliance and the purchasers/lessees must make their own investigations.