Back

6 Bridgehouse Court

Ballykelly BT49 9HR Offers around £184,950
Free Market Appraisal Request your free no-obligation valuation today… Free Valuations

Share with a friend

Please check you have entered all details correctly:

Options

Key Information

Address 6 Bridgehouse Court Ballykelly, BT49 9HR
Price Offers around £184,950
Style Townhouse
Bedrooms 6
Receptions 1
Bathrooms 5
Heating Oil
EPC Rating D63/C72
Status For sale
   
Book a Viewing
Call us now on: 028 7776 2558
Free Valuations Enquire

Make an enquiry

Please check you have entered all details correctly:

Summary

  • Mid Terrace Three Storey Town House
  • Lounge/Kitchen-Dining/6 Bedrooms/5 Bathrooms
  • Recently Renovated Throughout
  • Oil Fired Central Heating (New Boiler Fitted)
  • uPVC Double Glazed Windows
  • Private Parking to Front of Property
  • Close to Local Village Amenities
  • Excellent Residential Location

Additional Information

DESCRIPTION:
This three storey townhouse is located within a quiet residential development in Ballykelly Village, just a short walk to local shops and village amenities. The property has been extensively renovated throughout to offer all the luxuries of modern living. It offers plenty of accommodation laid out over three floors with three en-suite bedrooms and modern fitted kitchen. This property needs to be viewed to fully appreciate everything it has to offer.
LOCATION:
Travelling through Ballykelly towards Greysteel, continue past the filling station and turn right onto Station Road, and then immediate right into the Bridgehouse Court. Number 6 is situated on the right hand side.
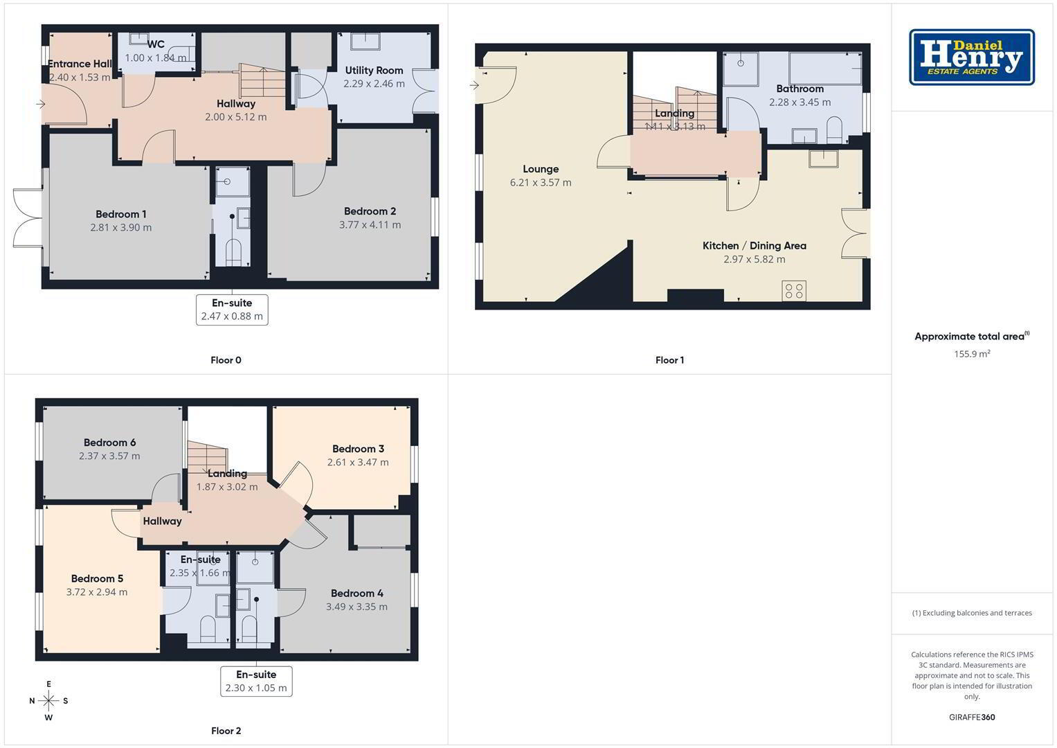
GROUND FLOOR ACCOMMODATION:
Entrance Hall: 2.40 x 1.53 (7'10" x 5'0")
with under-stair storage, wood effect laminate flooring.
Separate W.C.: 1.0 x 1.84 (3'3" x 6'0")
with low flush w.c., pedestal wash hand basin, extractor fan, tiled floor.
Bedroom (1): 2.81 x 3.90 (9'2" x 12'9")
with carpet flooring, built-in clothes rail, UPVC patio doors, sliding door to EN-SUITE: 2.47m x 0.88m having fully tiled shower cubicle with thermostatic shower, pedestal wash hand basin, low flush w.c., extractor fan, stainless steel room heater, uPVC panelled ceiling, cushion flooring.
Bedroom (2): 3.77 x 4.11 (12'4" x 13'5")
with carpet flooring.
Utility Room: 2.29 x 2.46 (7'6" x 8'0")
with low level units, matching worktop, stainless steel bowl sink unit, plumbed for automatic washing machine, space for tumble dryer, cupboard with pressurised water system, tiled flooring, UPVC patio doors to rear yard.
STAIRCASE TO FIRST FLOOR LANDING:
Lounge: 6.2 1x 3.57 (20'4" 3'3"x 11'8")
having Granite effect fireplace with tiled hearth, feature glass block wall, wood effect laminate flooring, open plan through to:
Kitchen/Dining: 2.97 x 5.82 (9'8" x 19'1")
with a range of grey painted eye and low level units, matching worktop with up-stand, under-unit lighting, stainless steel sink unit, pelmet with recess lighting, built in hob and oven, extractor fan with light, built-in fridge/freezer, wood effect laminate flooring, uPVC patio doors.
Bathroom: 2.28 x 3.45 (7'5" x 11'3")
with four piece suite comprising of free-standing bath, pedestal wash hand basin, low flush w.c., uPVC panelled shower cubicle with thermostatic shower. Also having extractor fan, part tiled walls, cushion flooring.
STAIRCASE TO SECOND FLOOR LANDING:
Bedroom (3): 2.61 x 3.47 (8'6" x 11'4")
with carpet flooring.
Bedroom (4): 3.49 x 3.35 (11'5" x 10'11")
with carpet flooring, built-in wardrobe. EN-SUITE: 2.30 x 1.05 having fully tiled shower cubicle with electric shower, pedestal wash hand basin, low flush w.c., extractor fan, part tiled walls, cushion flooring.
Bedroom (5): 3.72 x 2.94 (12'2" x 9'7")
with carpet flooring. EN-SUITE: 2.35m x 1.66m having fully tiled shower cubicle with electric shower, pedestal wash hand basin, low flush w.c., extractor fan, part tiled walls, cushion flooring.
Bedroom (6): 2.37 x 3.57 (7'9" x 11'8")
with carpet flooring.
EXTERIOR FEATURES:
Pavia brick laid to front of property for private parking.

Small enclosed pavia brick rear yard enclosed by wall and high fencing.
ANNUAL RATES:
£1279 as at 04/02/2026.