Daniel Henry (Limavady)

Development Site At, 189 Irish Green Street Limavady, BT49 9AR

Development Opportunity For Sale

Guide price £500,000

Print additional images & map (disable to save ink)

IMG_8666.jpg

Telephone:

028 7776 2558

View Online:

www.danielhenry.co.uk/1065476

Key Information

Address Development Site At, 189 Irish Green Street Limavady, BT49 9AR
Price Guide price £500,000
Land type Development Opportunity
Status For sale

Features

  • Residential Development Opportunity
  • Edge of Town Location
  • Within Walking Distance of Local Amenities
  • Planning Permission for 12 Homes
  • Range of Detached Houses, Semi-Detached Houses and Apartments

Additional Information

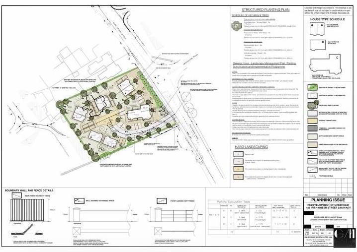
DESCRIPTION OF PROPOSAL:
Demolition of existing dwelling and construction of housing development comprising:

2 x 3 bedroom two storey detached dwellings.
6 x 3 bedroom two storey semi-detached dwellings.
4 x 2 bedroom own door apartments within 2 storey block.

Alteration and relocation of existing access and associated landscaping and parking.
FOR SALE: Residential Development Site of 12 Homes
We have been instructed to offer for sale, this prime development with full planning permission. It is located just on the edge of Limavady Town Centre within close proximity of all local amenities. The site comprises of an excellent range of detached and semi-detached homes, together with a small block of two bedroom apartments.

For further details, please contact our Limavady office on 028 7776 2558 / Email: limavady@danielhenry.co.uk
  • Daniel Henry

    Daniel Henry (Limavady)

    028 7776 2558

Photo Gallery

IMG_8666.jpg IMG_8669.jpg IMG_8670.jpg IMG_8668.jpg IMG_8665.jpg Front Image.jpeg

Location

Visit www.danielhenry.co.uk for further details.